2019 - Concorso nuova scuola dell'infanzia Comune di Lamone
Committente: Comune di Lamone
Costo complessivo indicato: 6’500’000 CHF (incl. IVA)
Partecipanti: 60 studi d’architettura
Risultato: Il progetto - Playground - ha superato i due turni di valutazione entrando nella rosa dei primi 6 progetti.




<
4 - 4
>
2018 - Concorso nuova palestra Verscio



<
2 - 3
>
2017 - Concorso nuovo centro scolastico zona "La Santa" Viganello


<
2 - 2
>
2017 - Concorso ampliamento istituto Miralago di Brissago



<
3 - 3
>
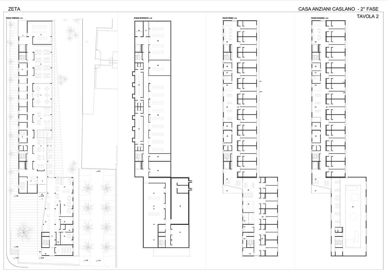
2014 – Concorso di architettura nuova casa per anziani a Caslano
Committente: Casa Anziani Malcantonese
Costo complessivo indicato: 21’600’000 CHF (incl. IVA)
Partecipanti: 57 studi d’architettura
Risultato: Progetto ammesso in seconda fase con altri 10 progetti.



<
3 - 3
>
2009 – Stesura bando di concorso d’architettura a prequalifica
Per il risanamento degli stabili amministrativi OFIMA a Locarno (approvato dal comitato SIA).
Nota: bando mai emesso, OFIMA ha deciso di cambiare strategia di intervento.
Committente: OFIMA, Locarno
Costo complessivo: 12’500’000 CHF (incl. IVA)
Team progettisti:
Archidielle Sagl, Lugano
Moggio Engineering, Bioggio
Giuria:
Mauro Buletti, architetto, Lugano
Sergio Cattaneo, architetto, Bellinzona
Fabrizio Gellera, architetto, Locarno
Progettazione: 2009-2012
Realizzazione: 2012 Terminato e approvato dalla SIA: conformità SAI 142/143.